 |
|
23 dec 2022
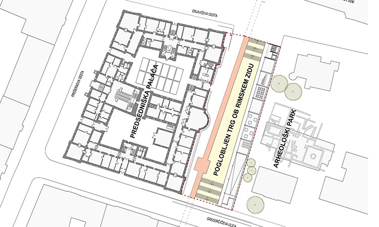
Square in front of the Presidential Palace with a Roman wall
We prepared a proposal for a deepened square in front of the presidential palace, which would connect Erjavčeva and Gregorčičeva streets in Ljubljana! With a deepening of about 3m, the entire Roman wall is revealed, which runs only a few meters in front of the presidential palace.
An archaeological artefacts exhibition area will be arranged next to the square, which will also become the main entrance to the archaeological park of the early Christian period in the middle of the square, with a passage directly from the new square. |